黄浦-豫园-香港名都,190平方,简装装修
3.5元/m²/天
20227元/月
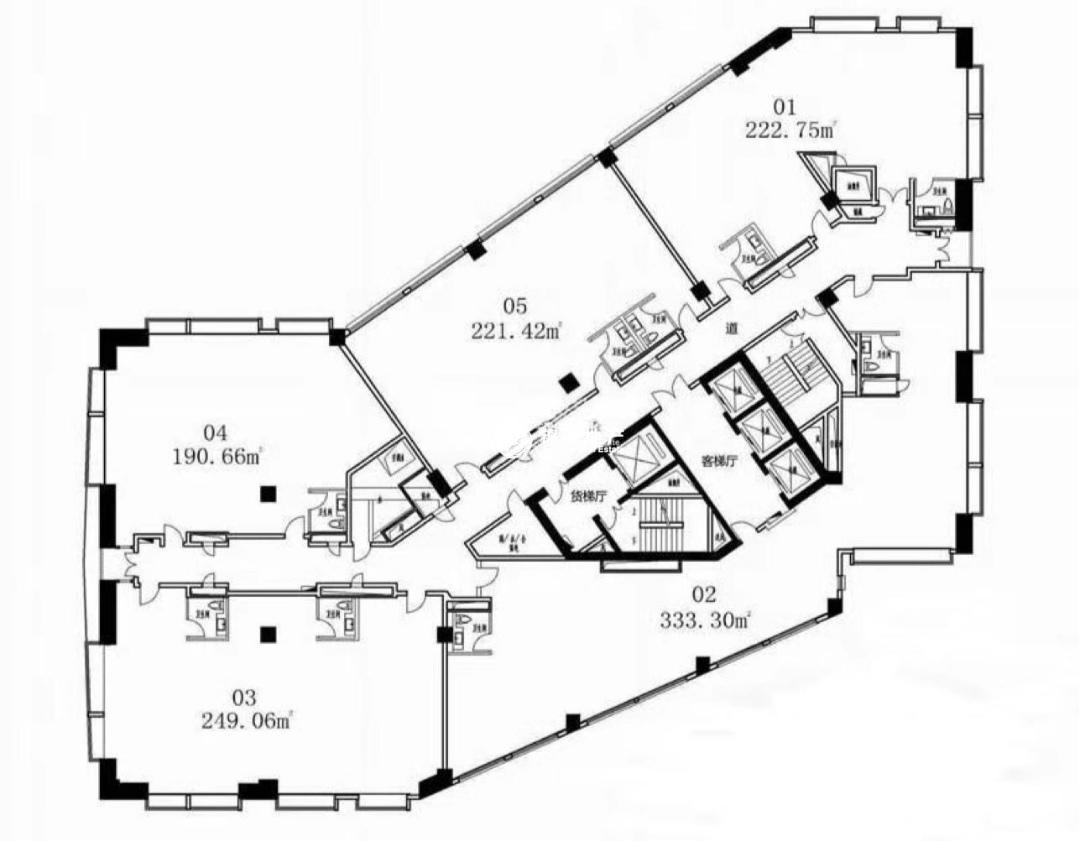
- 190㎡ 建筑面积
- 23~47个 可容纳工位
- 简装 装修程度
香港名都
黄浦-豫园 河南南路28号街坊
距离10号主线豫园站约281米
写字楼概述
- 装修情况简装
- 看房时间待完善,详情请咨询经纪人
- 免租时间待完善,详情请咨询经纪人
- 最短租期待完善,详情请咨询经纪人
- 价格优势免租期
- 面积信息面积190㎡,可容纳工位23~47个
周边配套
黄浦-豫园 河南南路28号街坊
