静安-江宁路-静安创展中心,330平方,精装装修,南朝向
3.0元/m²/天
30000元/月
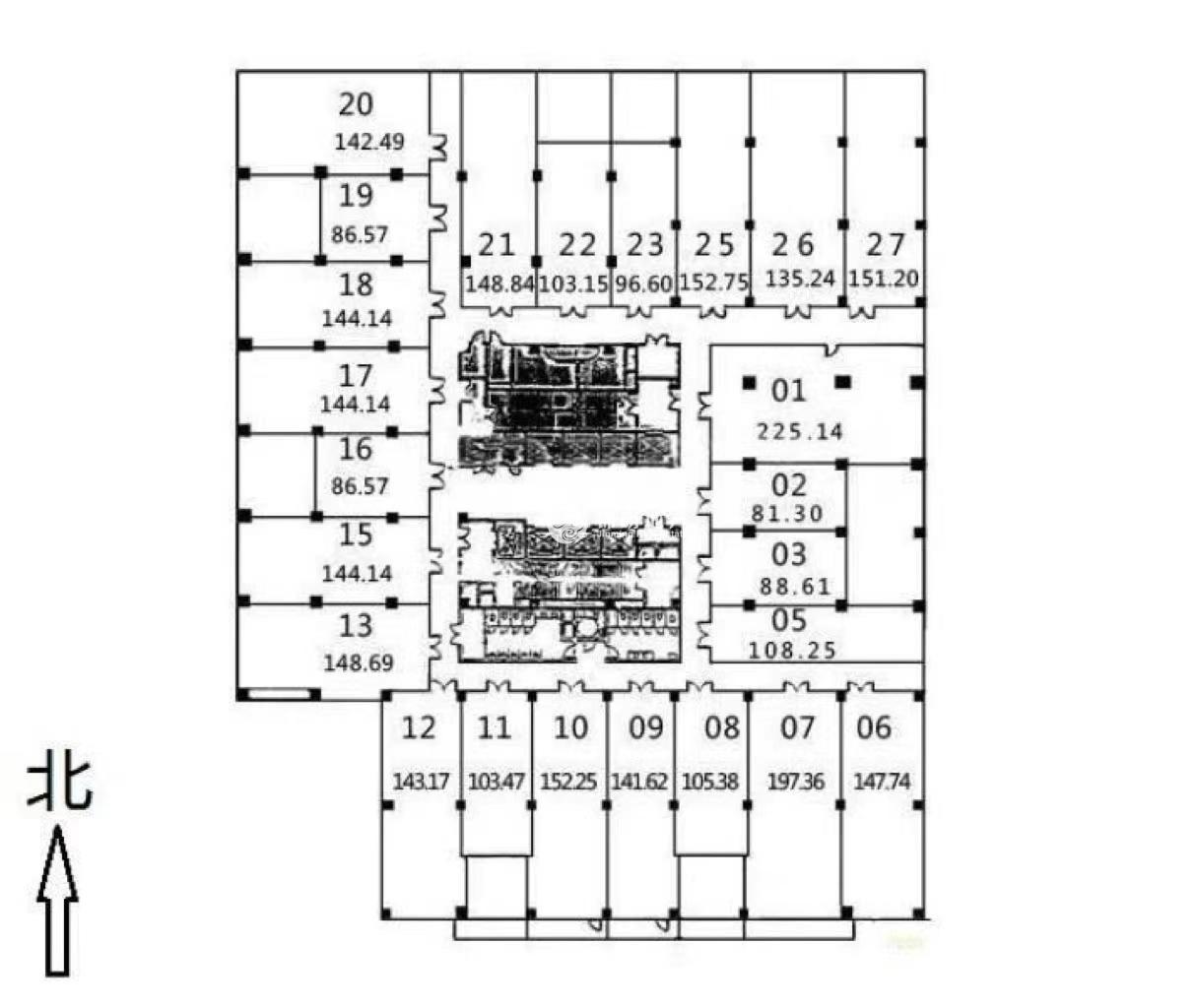
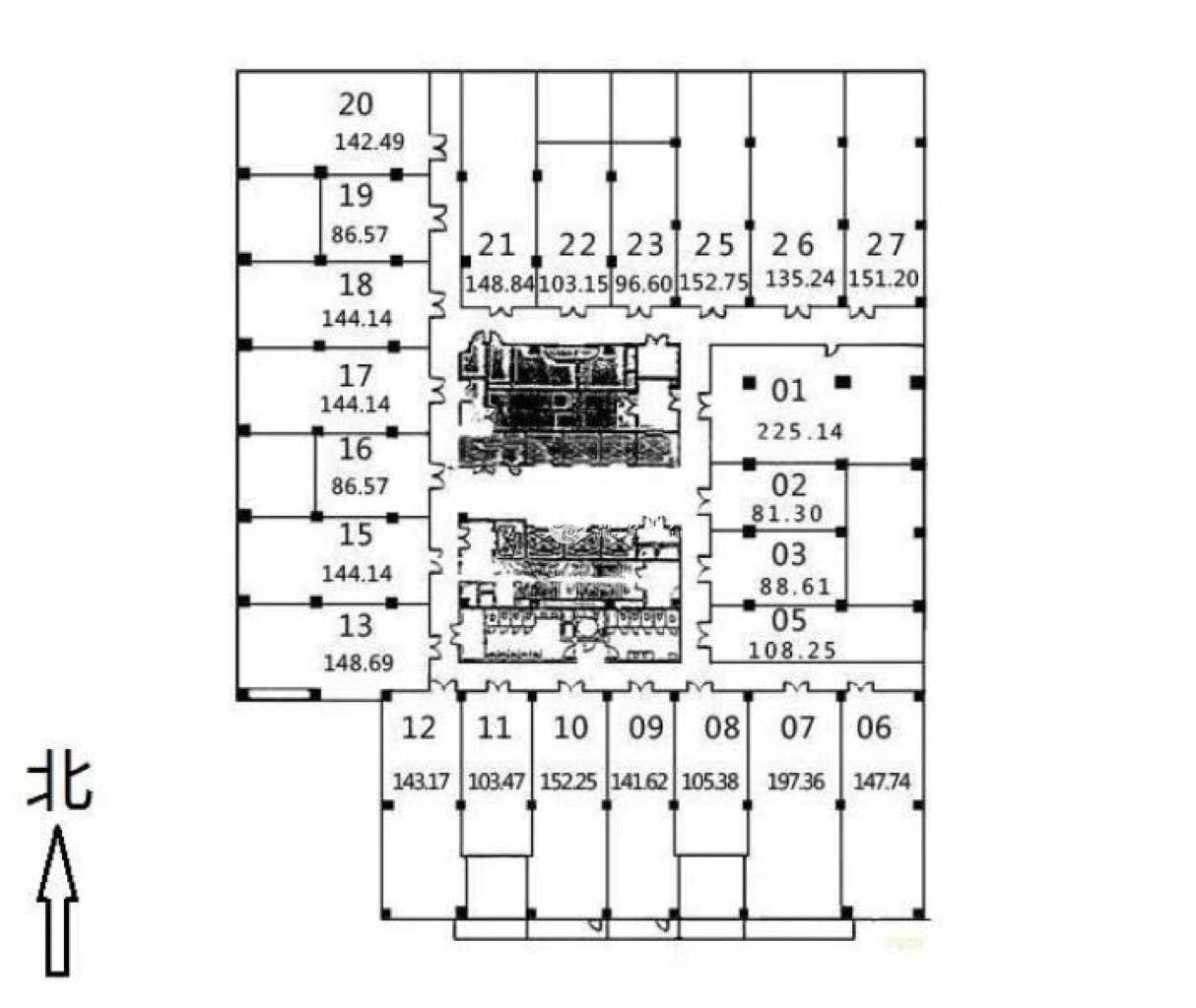
- 330㎡ 建筑面积
- 41~82个 可容纳工位
- 精装 装修程度
静安创展中心
静安-江宁路 西康路928号
距离7号线长寿路站约242米
写字楼概述
- 装修情况精装
- 看房时间预约
- 免租时间1个月
- 最短租期1年
- 价格优势免租期1个月,月租
- 面积信息面积330㎡,可容纳工位41~82个
周边配套
静安-江宁路 西康路928号
