浦东-潍坊-同盛大厦,161平方,中装装修,南北朝向
6.0元/m²/天
29452元/月
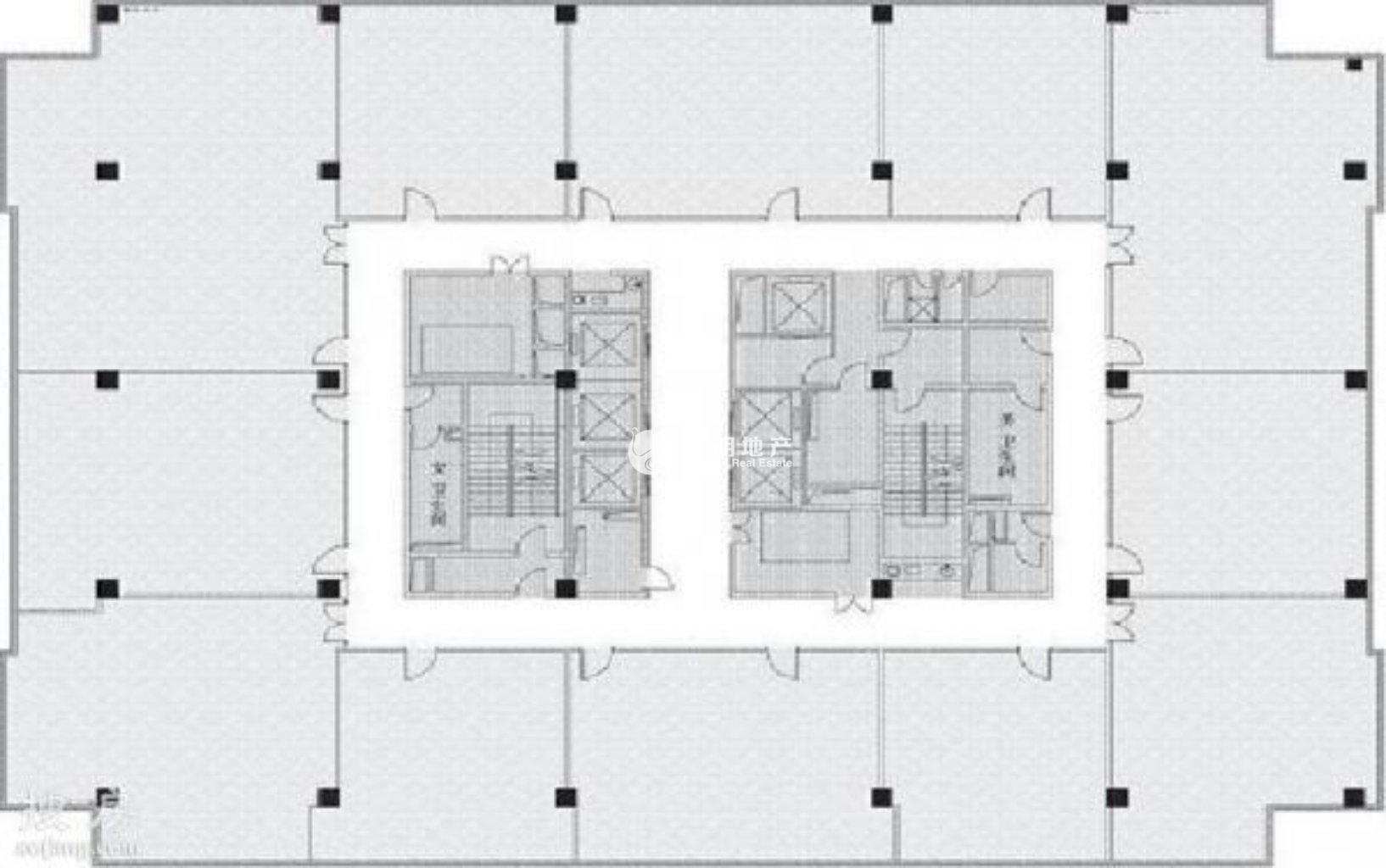
- 161㎡ 建筑面积
- 20~40个 可容纳工位
- 中装 装修程度
同盛大厦
浦东-潍坊 福山路458号
距离4号线浦电路(4号线)站约55米
写字楼概述
- 装修情况中装
- 看房时间待完善,详情请咨询经纪人
- 免租时间待完善,详情请咨询经纪人
- 最短租期待完善,详情请咨询经纪人
- 价格优势免租期
- 面积信息面积161.38㎡,可容纳工位20~40个
周边配套
浦东-潍坊 福山路458号
