徐汇-田林-越界锦和尚城,220平方,精装装修
4.8元/m²/天
32120元/月
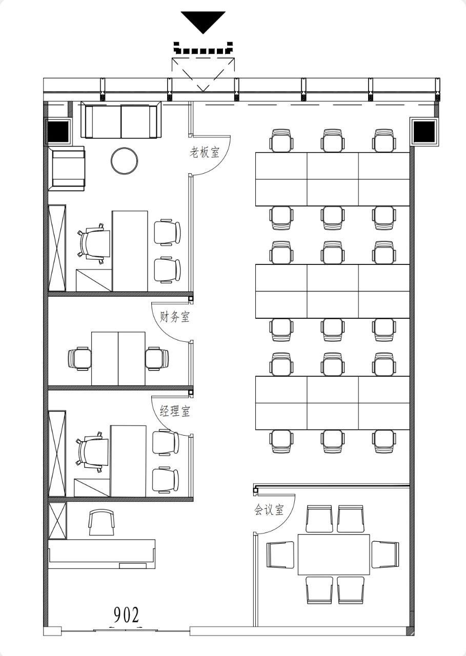
- 220㎡ 建筑面积
- 27~55个 可容纳工位
- 精装 装修程度
越界锦和尚城
徐汇-田林 田林路140号
距离15号线桂林路站约342米
写字楼概述
- 装修情况精装
- 看房时间待完善,详情请咨询经纪人
- 免租时间待完善,详情请咨询经纪人
- 最短租期待完善,详情请咨询经纪人
- 价格优势免租期
- 面积信息面积220㎡,可容纳工位27~55个
周边配套
徐汇-田林 田林路140号
